Gaïa

Rouen Flaubert - Rouen
typologie

Plateau de bureaux, Commerce, Logement

livraison estimée

Mars 2025

à partir de

240 320 €

Échanger avec un conseiller

    Description

    Une ambition environnementale forte

     

    Au cœur de la rive gauche de Rouen, dans le quartier Flaubert en pleine métamorphose, Gaïa incarne une nouvelle façon de concevoir la ville.
    Sur près de 20 000 m², le projet déploie un programme mixte associant logements, bureaux, commerces et espaces paysagers.
    Pensé comme un lieu de vie ouvert et évolutif, Gaïa propose une composition urbaine fluide et harmonieuse, ancrée dans une démarche durable et responsable.

    Conçu pour s’adapter aux nouveaux usages urbains, le projet privilégie les mobilités douces, la nature en ville et la mixité des fonctions. L’architecture, sobre et contemporaine, intègre des matériaux biosourcés et des solutions énergétiques performantes, en conformité avec les standards RE2020.

    12 000

    m² dédiés au tertiaire

    4 800

    m² de logements

    4 000

    m² dédiés à la formation

    800

    m² de commerces de proximité

    Perspective

    Réalisation

    Les petits + du programme

    Une architecture pensée pour vivre dehors

    Jardins suspendus, terrasses végétalisées, rooftops partagés : Gaïa multiplie les espaces à ciel ouvert pour favoriser le bien-être et la convivialité. Chaque bâtiment s’ouvre sur des vues dégagées et des lieux de respiration, imaginés comme des prolongements naturels des logements.

    Un projet exemplaire sur le plan environnemental

    Inscrit dans la dynamique du quartier Rouen Flaubert, Gaïa se veut un modèle d’intégration urbaine durable. Les constructions visent une performance énergétique élevée, avec des logements classés DPE A et B, un recours massif aux énergies renouvelables, et une attention particulière portée à l’orientation, à la ventilation naturelle et à la limitation des consommations.

    Construire mieux, avec moins

    Gaïa fait le choix du biosourcé niveau 1, en intégrant des matériaux naturels dans ses structures et finitions. Ce parti pris permet de réduire significativement l’empreinte carbone du projet, tout en garantissant confort, durabilité et qualité de l’air intérieur. C’est une nouvelle manière de bâtir la ville : responsable, engagée, et tournée vers les générations futures.

    Crédit photos : Julien Tragin

    Vidéo

    À Rouen, Gaïa est bien plus qu’un projet immobilier : c’est un nouveau quartier de 20 000 m² pensé pour travailler, apprendre, habiter et partager.

    En savoir plus sur nous
    GAIA DRONE

    Lots

    Les lots disponibles dans ce programme

    Commerce

    surface
    à partir de 240 320 €
    2 disponibles
    Référence Surface étage Prix Les +

    Commerce THEIA – LOCAL, RDC étage

    240 320 €

    Description

    surface

    85 m2

    étage

    RDC étage

    Échanger avec un conseiller
    Commerce THEIA – LOCAL, RDC étage

    Commerce THEIA – LOCAL, RDCétage

    Référence THEIA – LOCAL
    Surface 85 m2
    étage RDC
    prix 240320 €
    Les + Parking sécurisé, Espaces extérieurs , Accès facilité, Emplacement idéal,
    Plus d’informations

    Commerce THEIA – 001, RDC étage

    516 270 €

    Description

    surface

    160 m2

    étage

    RDC étage

    Échanger avec un conseiller
    Commerce THEIA – 001, RDC étage

    Commerce THEIA – 001, RDCétage

    Référence THEIA – 001
    Surface 160 m2
    étage RDC
    prix 516270 €
    Les + Parking sécurisé, Espaces extérieurs , Accès facilité, Emplacement idéal,
    Plus d’informations

    Logement

    surface 123 m2
    à partir de 520 000 €
    2 disponibles
    Référence Surface étage Prix Les +

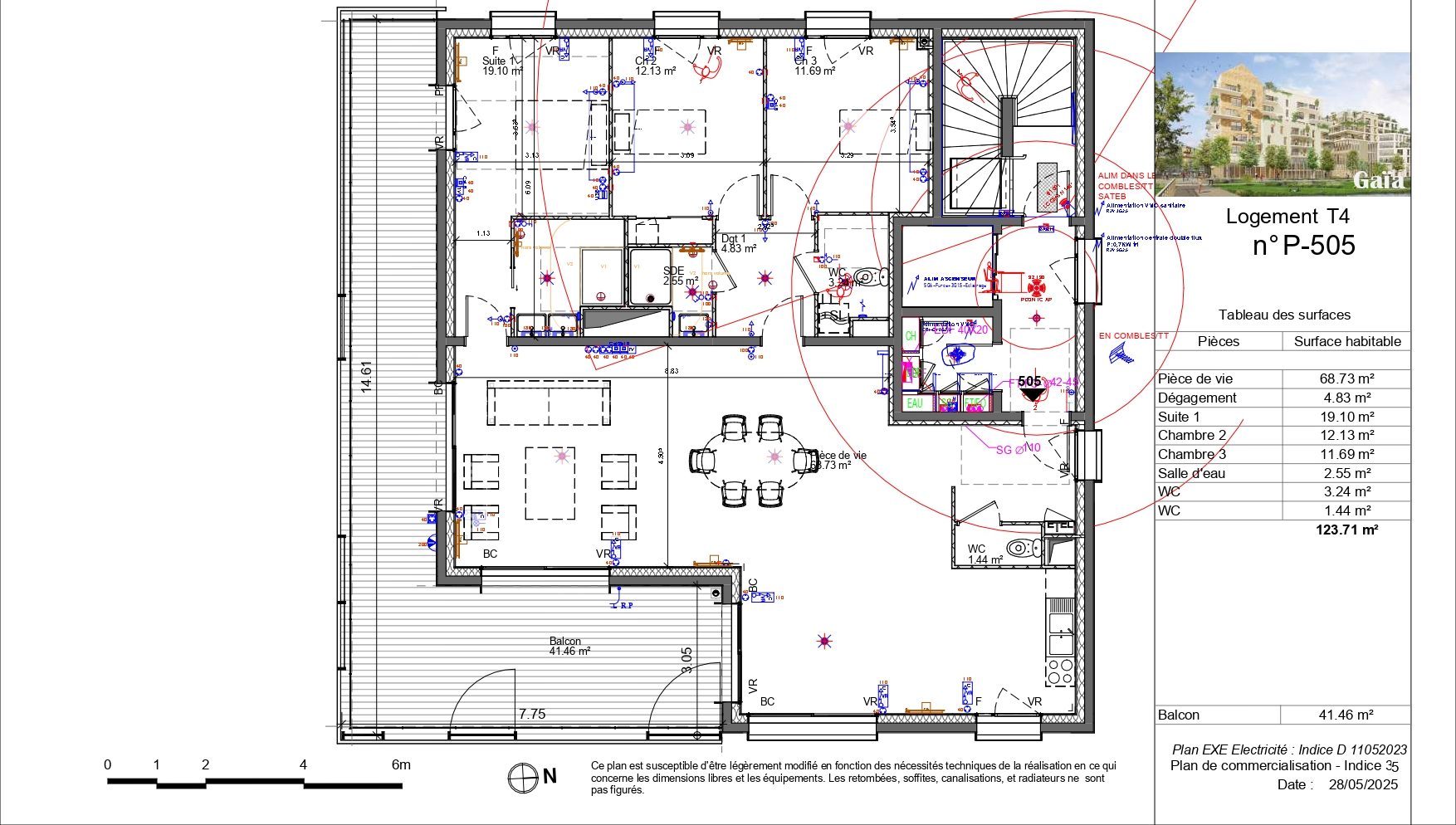
    Commerce APT 505 – Pontos, 5 étage

    530 000 €

    Description

    surface

    123 m2

    Nombre de pièces

    4 pièces

    Exposition

    Sud

    étage

    5 étage

    Échanger avec un conseiller
    Logement APT 505 – Pontos, 5 étage

    Logement APT 505 – Pontos, 5étage

    Référence APT 505 – Pontos
    Surface 123 m2
    étage 5
    prix 530000 €
    Les + Parking sécurisé, Espaces extérieurs , Accès facilité, Emplacement idéal,
    Plus d’informations

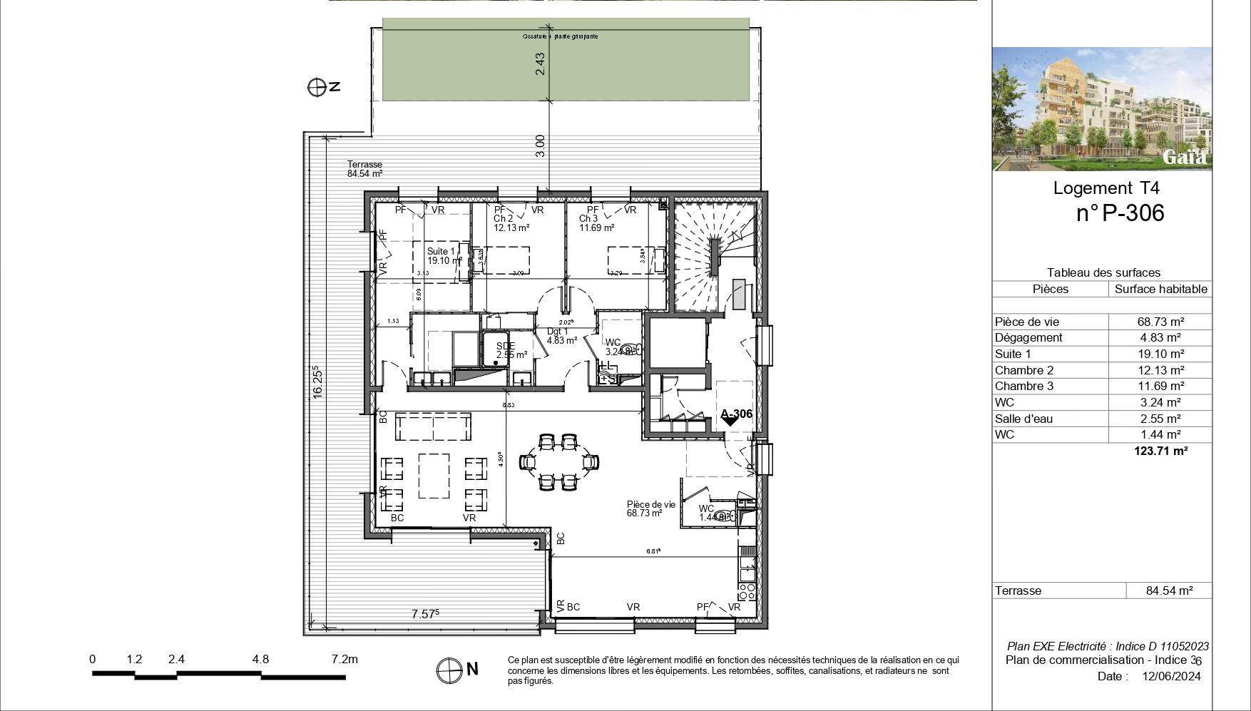
    Commerce APT 306 – Pontos, 3 étage

    520 000 €

    Description

    surface

    123 m2

    Nombre de pièces

    4 pièces

    Exposition

    Sud

    étage

    3 étage

    Échanger avec un conseiller
    Logement APT 306 – Pontos, 3 étage

    Logement APT 306 – Pontos, 3étage

    Référence APT 306 – Pontos
    Surface 123 m2
    étage 3
    prix 520000 €
    Les + Parking sécurisé, Espaces extérieurs , Accès facilité, Emplacement idéal,
    Plus d’informations

    Plateau de bureaux

    surface
    à partir de 897 390 €
    3 disponibles
    Référence Surface étage Prix Les +

    Commerce THEMIS R+7, R+7 étage

    992 079 €

    Description

    surface

    292 m2

    étage

    R+7 étage

    Échanger avec un conseiller
    Plateau de bureaux THEMIS R+7, R+7 étage

    Plateau de bureaux THEMIS R+7, R+7étage

    Référence THEMIS R+7
    Surface 292 m2
    étage R+7
    prix 992079 €
    Les + Parking sécurisé, Espaces extérieurs , Accès facilité, Emplacement idéal,
    Plus d’informations

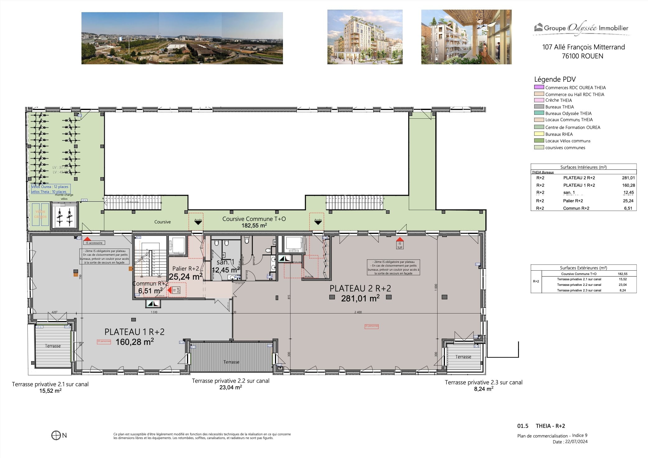
    Commerce THEIA – 202, R+2 étage

    897 390 €

    Description

    surface

    281 m2

    étage

    R+2 étage

    Échanger avec un conseiller
    Plateau de bureaux THEIA – 202, R+2 étage

    Plateau de bureaux THEIA – 202, R+2étage

    Référence THEIA – 202
    Surface 281 m2
    étage R+2
    prix 897390 €
    Les + Parking sécurisé, Espaces extérieurs , Accès facilité, Emplacement idéal,
    Plus d’informations

    Commerce THEIA – 101, R+1 étage

    1 065 870 €

    Description

    surface

    337 m2

    étage

    R+1 étage

    Échanger avec un conseiller
    Plateau de bureaux THEIA – 101, R+1 étage

    Plateau de bureaux THEIA – 101, R+1étage

    Référence THEIA – 101
    Surface 337 m2
    étage R+1
    prix 1065870 €
    Les + Parking sécurisé, Espaces extérieurs , Accès facilité, Emplacement idéal,
    Plus d’informations

    “À Rouen, travailler quotidiennement au sein de Gaïa offrira à la fois des conditions de travail formidables et un environnement naturel incroyable : la promenade qui s’étend jusqu’à la presqu’île Rollet a été lauréate du Grand Prix National du Paysage !”

    – Marc Laubiès, président du Groupe Odyssée Immobilier

    Localisation

    Les commodités aux alentours

    Légende

    Transports en commun
    Restaurants et cafés
    Écoles
    Supermarchés
    Pharmacies
    SOUTIEN AUX ARTISTES FOND

    1 Immeuble, 1 Œuvre

    Notre soutien
 aux artistes

    Notre groupe soutient et encourage les artistes contemporains. Nous souhaitons partager notre passion pour l’art en le rendant accessible à tous les publics… Et en le faisant entrer directement dans nos murs !

    Vous recherchez votre futur lieu de vie ou de travail ?

    Confiez-nous votre projet. L’immobilier tertiaire et résidentiel, ça nous connaît chez Odyssée Immobilier. Bien plus que des biens, nous vous proposons de découvrir des espaces au sein desquels il fait bon vivre et travailler ensemble. Toujours à l’écoute des évolutions de notre société et de nos modes de travail, nous inventons de nouveaux environnements plus ouverts et plus responsables

    Voir nos programmes en cours

    Vous êtes une collectivité à la recherche d’un aménageur audacieux ?

    Contactez-nous

    Vous êtes propriétaire d’un terrain et vous souhaitez vendre ?

    Contactez-nous

    Vous aimerez aussi

    3 Commerces disponibles 3 Plateau de bureauxs disponibles

    Papeterie

    Bord de Seine – Vernon

    À Vernon, l’ancienne friche industrielle de la papeterie amorce une nouvelle vie. Ce site emblématique, longtemps en sommeil, devient aujourd’hui le théâtre d’un projet urbain d’envergure, mêlant histoire, innovation et attractivité.

    Découvrir le programme
    Papeterie
    Revenir à tous les programmes